本案是一套130平的三居室,装了简约北欧风,色彩浅淡柔和、自然清新,让空间洋溢着轻松、愉悦的气息。设计上,室内多以开放式为主,如客餐厅、主卧与阳台等,更加敞亮。厨房装玻璃推拉门,还设有玻璃隔断,最大程度与整体相融。两个卫生间的设计,不仅颜值高,实用性还很强,值得借鉴。
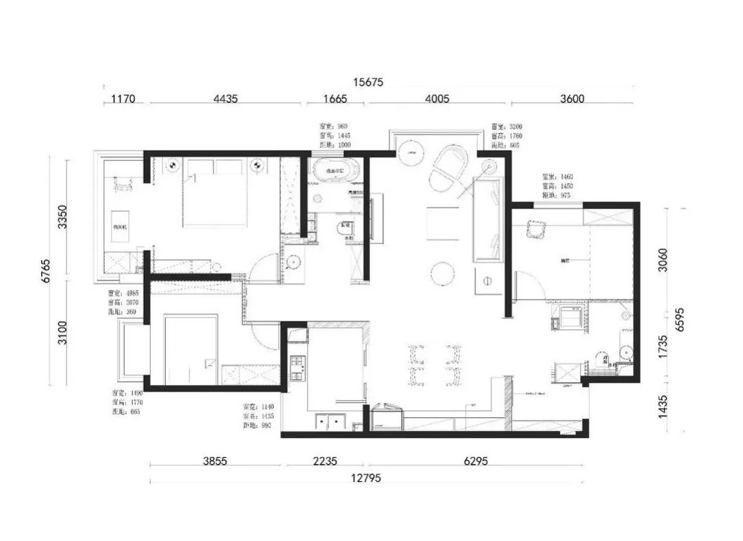
平面图


客厅

客厅硬装设计,格外简洁,白色电视墙,与绿色沙发墙相搭,还有蓝色电视柜,及木质家具点缀,空间如大自然一般清爽多彩。

原木茶几、绿植盆栽、多彩挂画等,不那么惹人注目的饰品,却能装饰出一个温润舒适、唯美优雅的居室。

盆栽放在滑轮上,移动更方便。
餐厅

拱形门洞设计,没有棱角,更柔和一些。

餐边柜分为上下两部分,中间装了镜面,可以起到扩容的作用。大冰箱嵌在一边更整齐,餐厅整个设计格外实用。

客餐厅开放式的格局,明亮大气。悬挂下来的两盏吊灯,简单实用。厨房装了黑框玻璃推拉门,更是通透。
厨房

厨房靠过道一边,敲掉部分实墙,装玻璃隔断,最大程度引入光线,让厨房、过道都更亮堂。橱柜颜色,也很清爽哦。
公卫

洗手台外移,干湿分离,墙壁上还装了嵌入式柜子,可以收纳日常洗漱用品,释放台盆。浴室装长虹玻璃,通透又能保护隐私。


壁挂式马桶,上方用绿萝简单装饰下,很清新。浴室设有大浴缸,泡澡自在更惬意,与马桶之间还设有隔断,方便十足。
主卧


主卧床头背景墙,颜色柔和,还带着淡淡的优雅气质,舒服极了。入墙式到顶大衣柜,最里侧开放式设计,美观更实用。

打通阳台,与主卧相通,装上纱帘,遮挡强光,装上吊椅,再设有茶几、绿植,作为一个可放松的休闲区,美妙无比。
次卧


次卧空间较小,但布置得一样简约清新,尤其绿色窗帘、床品,增添更多自然感。床尾设衣柜,收纳衣物足够了。
儿童房


儿童房靠窗设双人书桌,看书学习、玩乐皆可。榻榻米+衣柜组合,休闲、收纳、睡眠兼具。大镜子扩容效果更强。
次卫


洗衣机放在了卫生间门外,里面的墙壁、地面,铺设花砖,温馨时尚


